口子窖酒业居安陈襄    2017-04-13 00:00:00

口子窖酒业

项目地址:郑州市中原区

项目面积:560㎡

投资金额:49万


优秀设计师

黄霞

在线咨询

设计说明:

口子窖酒业是一家专业销售口子窖的白酒贸易公司,本案设计主要是其办公区和展厅。

ZT-口子窖-GL-170420-BGS-01.jpg

ZT-口子窖-GL-170420-ZT-01.jpg


一层主要是展厅和仓库,二楼为主要办公区。设计风格突显了企业的品牌形象,有很好的表现出办公空间的特点。

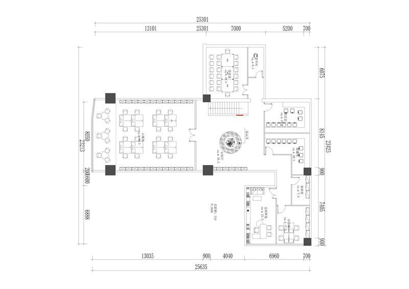
施工平面布置图:

安徽口子窖——升龙城7号楼一层.jpg

安徽口子窖——升龙城7号楼二层.jpg

施工现场图:

口子窖施工1_副本.jpg

居安装饰.jpeg

相关案例