项目地址:郑州市郑东新区聚源路
建筑面积:约180㎡
设计风格:现代简约
项目介绍:

欢心英语,立足中高端少儿英语培训市场,专业、专注4-10岁孩子的英语语感。公司成立两年来先后在北京、广东、河南开设了20多个学校。欢心英语通过建立全英语环境,对孩子进行感官刺激,培养孩子对英语的语感,并通过大量的积累,最终让孩子掌握英语技能,是与传统知识性英语教学截然不同的教学方法。
教育理念:不背单词、不学语法、母语式教学、全英文环境、快乐学英语
教学优势:完整的教学体系、原版的教学内容、寒暑假特色课程、学期末英语口语考试测评
培养目标:健康、自信、独立、坚持、开放、朴实
本案是圣科装饰承接的第三所分校,品质工程让客户放心交付。
设计说明:



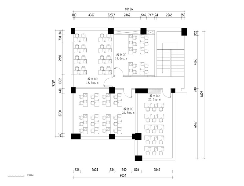
施工平面布置图:


施工现场照:



本项目工期要求短,甲方要求20日完工。2017年7月4日,施工全面开始,材料进场。施工正在加紧进行中......




完工现场照:

门头、前台和休闲区

走廊、楼梯、过道

宽敞明亮的教室,整齐的桌椅。

免费量房

手机网站
扫码打开
手机访问更便捷

返回顶部