河南小明星艺术团圣科装饰    2019-03-22 00:00:00

河南小明星艺术团

项目地址:郑州市金水区

项目面积:490平米

设计风格:现代

设计总监

岳晓贵

在线咨询

设计说明:


PX-小明星艺术团-史秀芳-190308-MT-01.jpg

PX-小明星艺术团-史秀芳-190308-QT-01.jpg

PX-小明星艺术团-史秀芳-190308-JS-01.jpg

PX-小明星艺术团-史秀芳-190308-JS-02.jpg

PX-河南小明星艺术团-SQF-190227-QT-01.jpg

PX-小明星艺术团-史秀芳-190308-ZL-01.jpg



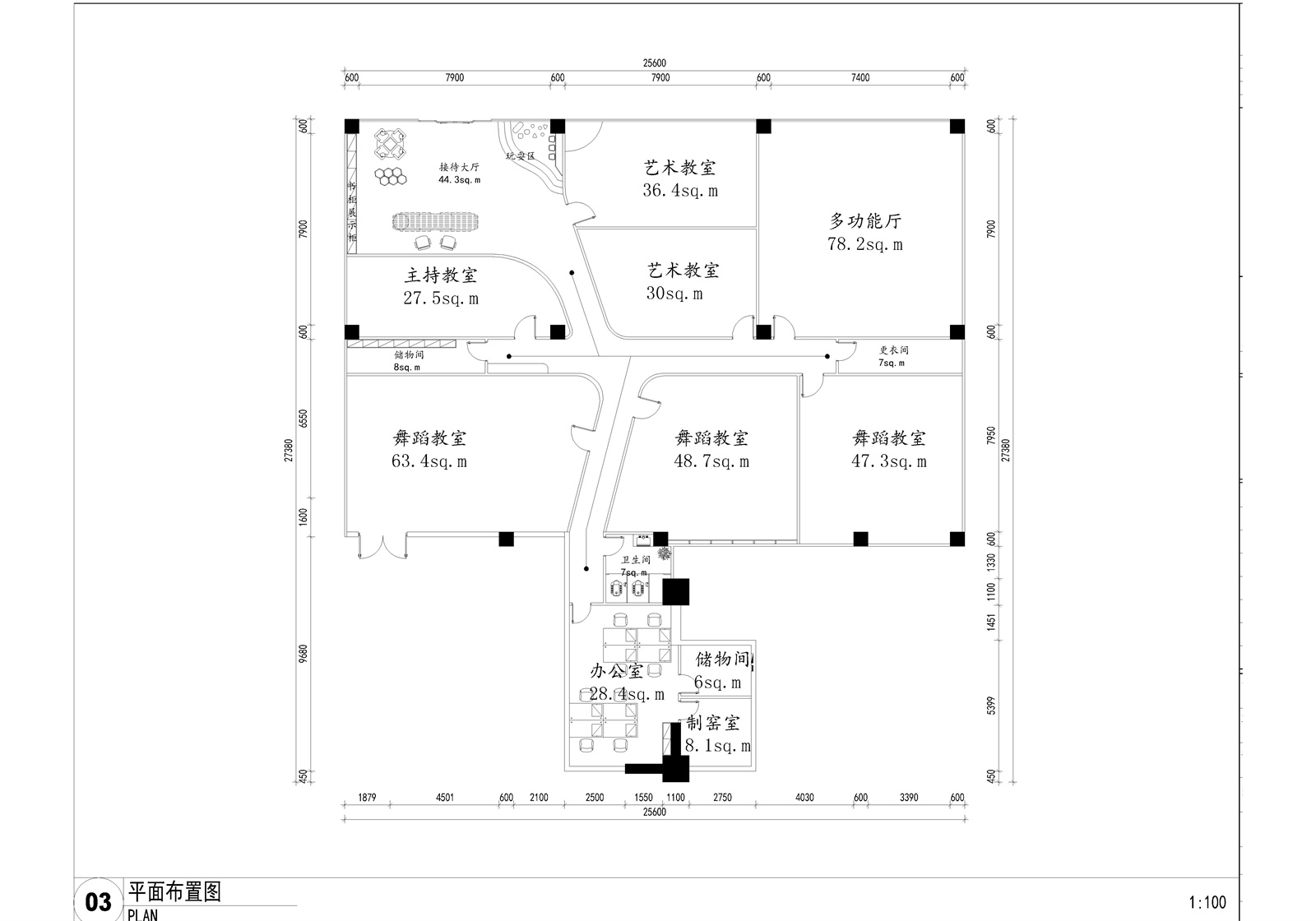
施工平面布置图:

河南小明星艺术团.jpg

完工照片:


小明星完工01.jpg


小明星完工05.jpg


小明星完工02.jpg


小明星完工03.jpg


小明星完工04.jpg


小明星完工06.jpg


小明星完工07.jpg


小明星完工08.jpg


小明星完工09.jpg


相关案例