项目地址:郑州市郑东新区
项目面积:600平米
设计风格:现代
设计说明:

▲前台

▲荣誉墙 展厅

▲董事长办公室

▲员工区

▲员工区

▲员工区

▲员工区

▲会议室
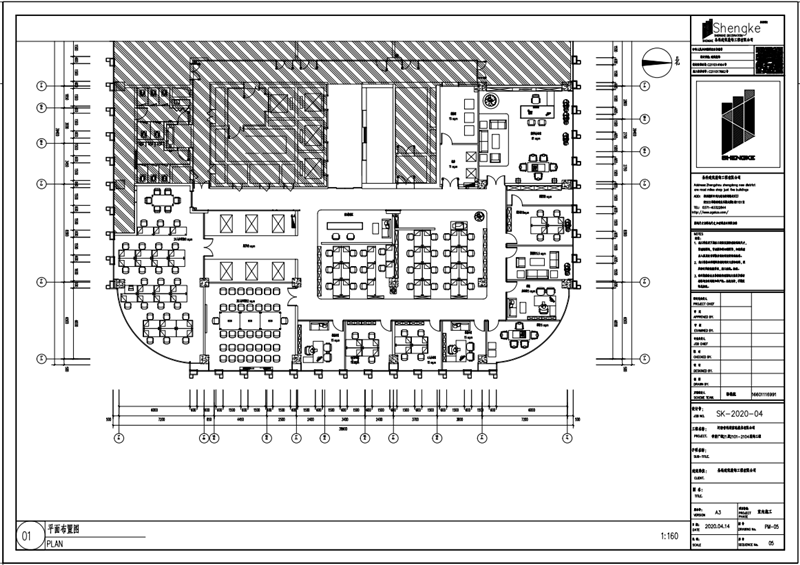
施工平面布置:

施工现场照:




完工照:

▲前台

▲入户厅

▲展厅

▲展厅

▲董事长办公室

▲总经理办公室

▲经理室

▲经理室

▲财务室

▲小会议室

▲员工区

▲员工区

▲员工区

▲员工区

▲会议室

免费量房

手机网站
扫码打开
手机访问更便捷

返回顶部