项目地址:郑州市郑东新区
项目面积:600平米
设计风格:现代
设计说明:

▲前台大厅

▲老总办公室

▲接待茶室

▲休闲区

▲开敞办公区

▲大会议室

▲小会议室
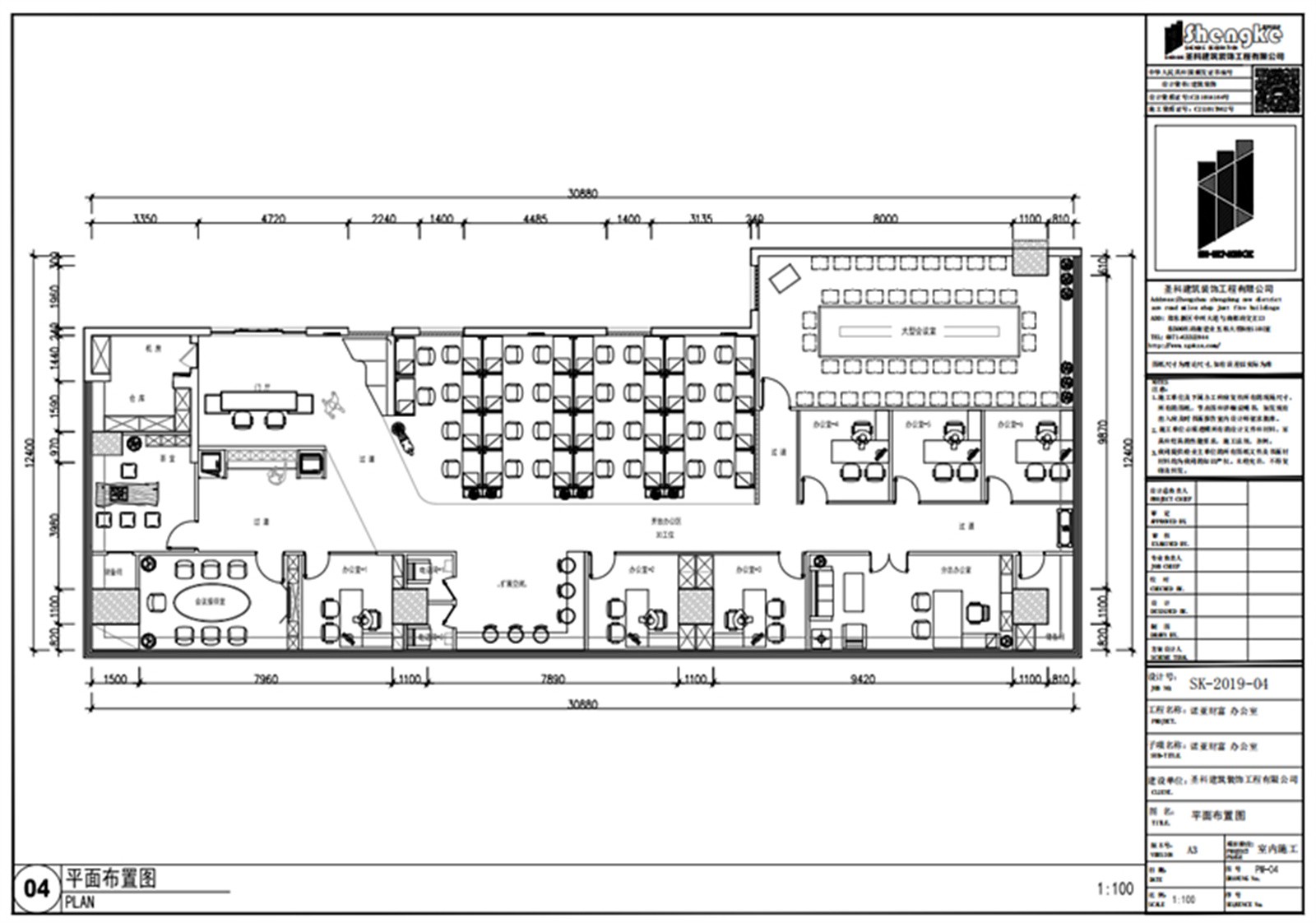
施工平面布置图:

完工照片:

▲前台形象墙

▲入户门厅

▲前台接待区

▲经理办公室

▲洽谈区

▲茶室

▲休闲区

▲打印区

▲走廊

▲办公区

▲办公区

▲大会议室

▲小会议室

免费量房

手机网站
扫码打开
手机访问更便捷

返回顶部