河南中钢网电子商务有限公司圣科装饰    2020-10-28 00:00:00

河南中钢网电子商务有限公司

项目地址:郑州市郑东新区

项目面积:1000平米

设计风格:现代、简约

设计总监

岳晓贵

在线咨询

设计说明:

中钢网前台.jpg

▲前台

中钢网过道及休闲区.jpg

▲过道及休闲区

中钢网过道及开放办公区.jpg

▲过道及开放办公区

中钢网开放办公区.jpg

▲开放办公区

中钢网会议室.jpg

▲会议室

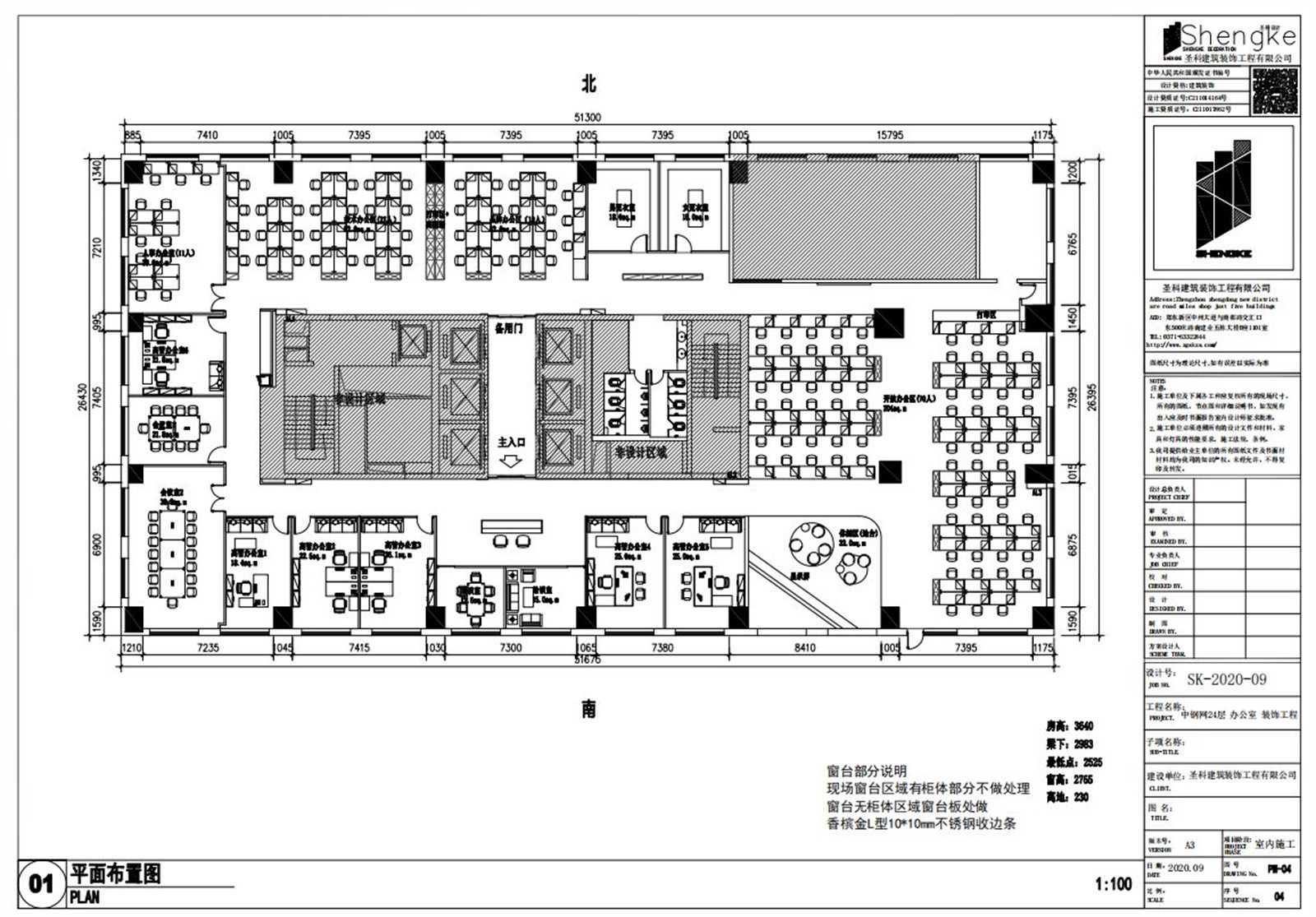
施工平面布置图:

中钢网24层平面.jpg

完工实景照:

前台形象墙

前厅

走廊

开敞办公区

开敞办公区

开敞办公区

相关案例