项目地址:郑州市经开区
项目面积:1200平米
设计风格:现代
设计说明:

▲前台

▲员工区

▲走廊、水吧区

▲会议室

▲售后服务区
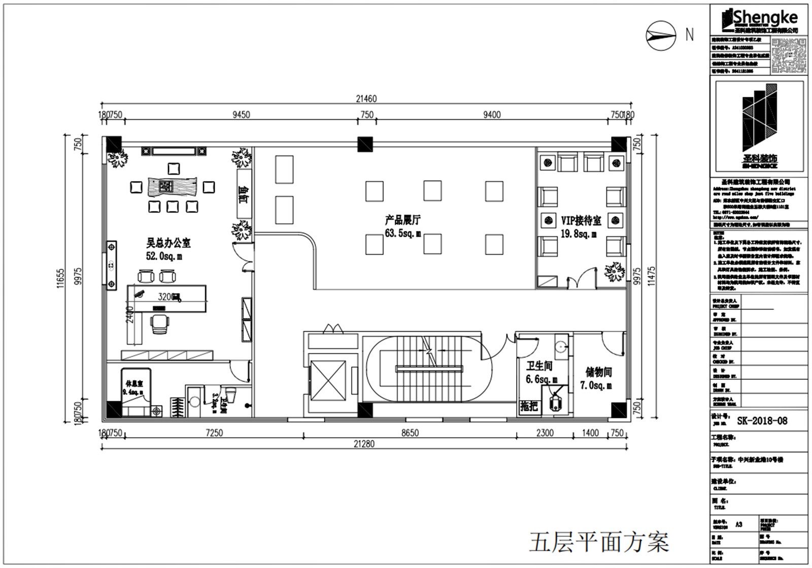
施工平面布置图:






完工现场照:

入户门厅

前台

前台大厅

办公区

办公室

办公室

办公室

电梯间

走廊

办公室

大会议室

走廊

卫生间

总经理办公室

总经办接待区

董事长办公室

董经办接待区

包间

免费量房

手机网站
扫码打开
手机访问更便捷

返回顶部