魔杰仕科技中心圣科装饰    2020-05-20 00:00:00

魔杰仕科技中心

项目地址:郑州市金水区

项目面积:350平米

设计风格:现代

主任设计师

李玲

在线咨询

设计效果图:

门头

前台大厅

接待区

会议室

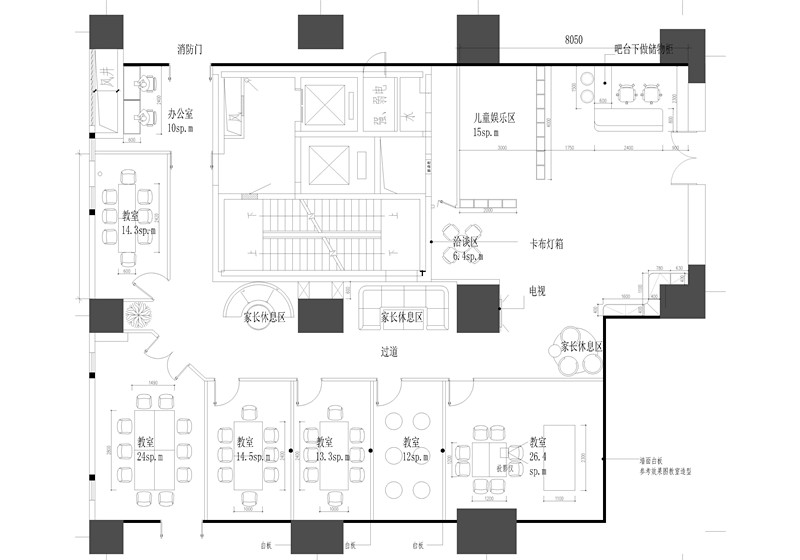
施工平面图:

九龙城平面_副本.jpg

相关案例