丸界大牛嘿糖店(餐饮饭店)圣科装饰    2021-08-03 00:00:00

丸界大牛嘿糖店(餐饮饭店)

项目地址:郑州市荥阳

项目面积:220平米

设计风格:现代

优秀设计师

黄霞

在线咨询

设计效果图:


门头形象.jpg

门头形象

门头外立面.jpg

门头外立面

点餐收银台.jpg

点餐收银

就餐区01.jpg

就餐区

就餐区02.jpg

就餐区

鸟瞰图01.jpg

鸟瞰图

鸟瞰图02.jpg

鸟瞰图

鸟瞰图03.jpg

鸟瞰图

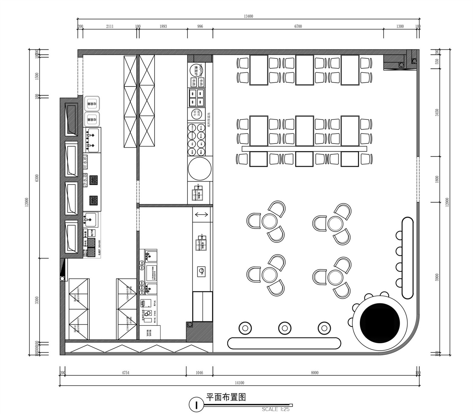
施工平面图:

平面图.jpg

完工照片:


丸界大牛嘿糖店外立面1.jpg

丸界大牛嘿糖店门头1.jpg

丸界大牛嘿糖店外立面2.jpg

丸界大牛嘿糖店外立面3.jpg

丸界大牛就餐区.jpg

嘿糖店点餐吧台.jpg

嘿糖店餐位区.jpg

相关案例