广联达科技股份有限公司河南分公司圣科装饰    2023-06-08 00:00:00

广联达科技股份有限公司河南分公司

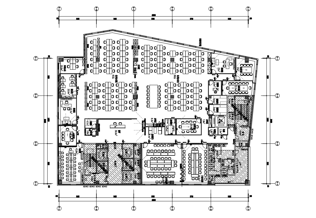
项目地址:郑州市郑东新区

项目面积:1200平米

设计风格:现代、时尚

设计总监

岳晓贵

在线咨询

设计效果图:


施工平面图:

广联达平面图.png

完工实景照:

入户前厅

前台大厅

休闲走廊

办公区

办公区

茶水间

洽谈室

共享经理室

总经理办公室

小会议室

大会议室

培训室

阳光休息区

相关案例