郑州秦衡称重设备有限公司圣科装饰    2024-03-08 00:00:00

郑州秦衡称重设备有限公司

项目地址:郑州市灏宇产业园

项目面积:1500平米

设计风格:现代、简约

主任设计师

李玲

在线咨询

设计效果图:



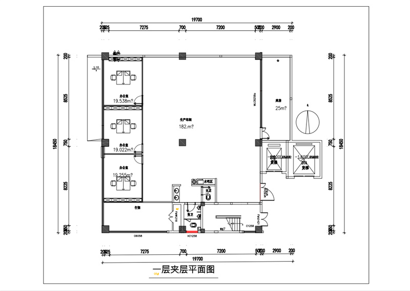
顶层露台.jpg施工平面图:


完工实景照:


三层前厅

三层办公区

三层办公区

经理室

经理室

办公室

小会议室

四层形象墙

四层入户大厅

四层办公室

四层办公室

大会议室

相关案例